Trusted manufacturers since 2000

Professional Installer Network

Quick Supply

Made in the UK

Exceptional Quality Control

Knowledgeable Family Run Business

Bespoke Complex Products Fabricated

AluSpace Internal Screening

The Aluspace Interior Screening System from Smart offers a stylish and flexible solution for creating light-filled, open-plan spaces with the timeless appeal of steel-look design. Whether you're zoning areas in a modern home, dividing a workspace, or adding acoustic separation to a commercial interior, Aluspace delivers both form and function. With ultra-slim sightlines and minimalist frames, these internal screens and doors bring an industrial aesthetic to any project—without compromising on comfort or usability.

Manufactured in-house by Direct Trade Windows, Aluspace is available in a wide range of hinged, pivot, sliding, and fixed screen options, all fully customisable to suit your space. With a variety of finishes, hardware, and accessories to choose from, this system is as versatile as it is elegant. Easy to install and designed for durability, our steel-look partitions provide visual separation while maintaining a sense of openness—making them ideal for home renovations, offices, studios, or boutique interiors.

Key Features:

  • Steel-look design: Industrial-style framing with clean, slim sightlines
  • Flexible layouts: Fixed screens, single/double hinged, pivot, and sliding doors
  • Acoustic barrier: Helps reduce noise between divided spaces
  • Tailored finishes: Wide choice of RAL colours and heritage-inspired textures
  • High-end visual appeal: Elevates interiors in both modern and period properties
  • Versatile applications: Perfect for residential and commercial interiors
  • In-house expertise: Custom-built to order, with support from our trusted installer network
Get a Quote
Modern office space divided with black-framed internal aluminium screens and glass partitions.
  • Technical Specification
  • Colours
  • Glass
  • Brochure
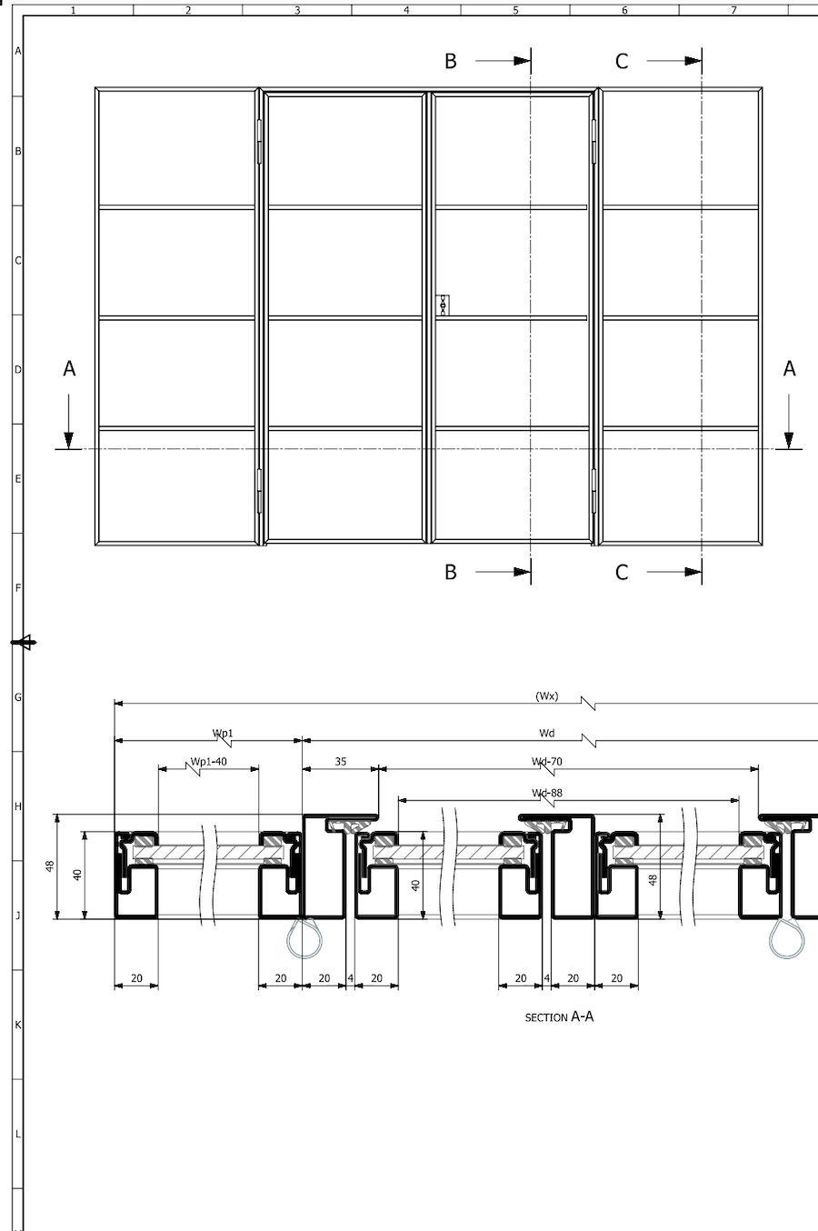
  • Technical Specification

    Single Door Max Width (mm) 900

    Single Door Max Height (mm) 2200

    Sliding Door Max Width (mm) 1200

    Sliding Door Max Height (mm) 2500

    Glazing (mm) 6, 8 or 18

    Frame Depth (mm) 35

    Typical Sightlines (mm) 35 - 69.5

    Colours

    White aluminium frame colour finish sample.

    White aluminium frame colour finish sample.

    Matt white aluminium frame colour finish sample.

    Matt white aluminium frame colour finish sample.

    Matt brown aluminium frame colour finish sample.

    Matt brown aluminium frame colour finish sample.

    Jet black aluminium frame colour finish sample

    Jet black aluminium frame colour finish sample

    Grey aluminium frame colour finish sample.

    Grey aluminium frame colour finish sample.

    Gloss white aluminium frame colour finish sample.

    Gloss white aluminium frame colour finish sample.

    Gloss off white aluminium frame colour finish sample.

    Gloss off white aluminium frame colour finish sample.

    Dark red aluminium frame colour finish sample.

    Dark red aluminium frame colour finish sample.

    Dark grey aluminium frame colour finish sample.

    Dark grey aluminium frame colour finish sample.

    Dark green aluminium frame colour finish sample.

    Dark green aluminium frame colour finish sample.

    Dark brown aluminium frame colour finish sample.

    Dark brown aluminium frame colour finish sample.

    Dark blue aluminium frame colour finish sample.

    Dark blue aluminium frame colour finish sample.

    Cream aluminium frame colour finish sample.

    Cream aluminium frame colour finish sample.

    Black aluminium frame colour finish sample.

    Black aluminium frame colour finish sample.

    Anthracite grey aluminium frame colour finish sample.

    Anthracite grey aluminium frame colour finish sample.

    Airforce grey aluminium frame colour finish sample.

    Airforce grey aluminium frame colour finish sample.

    Glass

    Glass Options

    Unglazed aluminium window frame with angled top.

    Unglazed aluminium window frame with angled top.

    Standard self-clean glass panel with clear finish.

    Standard self-clean glass panel with clear finish.

    Standard toughened glass panel with clear finish.

    Standard toughened glass panel with clear finish.

    Clear solar control glass panel for improved comfort and energy efficiency.

    Clear solar control glass panel for improved comfort and energy efficiency.

    Self-cleaning glass panel designed to break down dirt and reduce cleaning frequency.

    Self-cleaning glass panel designed to break down dirt and reduce cleaning frequency.

    Self Clean Solar Control panel combining dirt-repelling and heat-reducing technology.

    Self Clean Solar Control panel combining dirt-repelling and heat-reducing technology.

    Satin obscure glass panel with smooth frosted finish.

    Satin obscure glass panel with smooth frosted finish.

    Laminated security glass panel with clear finish.

    Laminated security glass panel with clear finish.

    Brochure

    Gallery

    Frequently Asked Questions (FAQs) - Steel Look Aluminium Partitions and AluSpace Doors

    Get a Quote

    What are steel look partitions, and what are their key features?

    Steel look partitions are modern architectural elements offered by Smart Systems and Direct Trade Windows. They are open, stylish, and versatile partitions that can create distinct areas in both residential and commercial spaces. Key features include various style options, the ability to fit single and double doors, ultra-slim sightlines, and the enhancement of property appeal.

    What are AluSpace hinged doors, and what are their specifications?

    AluSpace hinged doors are customizable doors suitable for various design themes. They have a minimum width of 400mm and a maximum width of 900mm, a maximum height of 2200mm, and can support a maximum weight of 60kg. Glazing options include 6mm, 8mm, or 18mm.

    Tell me about AluSpace sliding doors and their specifications.

    AluSpace sliding doors provide flexibility for internal spaces. They come with a minimum width of 400mm and a maximum width of 1200mm, a maximum height of 2500mm, and a maximum weight capacity of 100kg. You can choose from 6mm, 8mm, or 18mm glazing options.

    What is unique about AluSpace pivot doors, and what are their specifications?

    AluSpace pivot doors offer instant configuration changes for internal spaces. They have a minimum width of 400mm and a maximum width of 2000mm, a maximum height of 2500mm, and a maximum weight capacity of 100kg. You can select from 6mm, 8mm, or 18mm glazing options.

    How can steel look partitions and AluSpace doors improve my property?

    Steel look partitions and AluSpace doors can enhance the aesthetics and functionality of your property. Steel look partitions create distinct regions and add style, while AluSpace doors provide flexible access and visual appeal. These features can contribute to improving the overall value and attractiveness of both modern and period properties.

    Our Aluspace Products

    Cortizo logo FENSA logo BFRC logo